SKFN1013KPHA/SP轴承详细参数

发布时间:2026-04-14
圆柱滚子轴承,单列, 精密, 与钢路辗, PEEK, super-precision
主要数据尺寸 基本负荷额定值 疲劳负荷限值 可达到的速度 体积 型号
动态 静态 当润滑与
油脂 滴油润滑
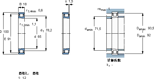
d D B C C0 Pu
mm kN kN r/min kg -
651001842,9546,320000240000,43N 1013 KPHA/SP

SKFN1013KPHA/SP圆柱滚子轴承供应商

八零动力专业销售N1013KPHA/SP圆柱滚子轴承,库存SKFN1013KPHA/SP大量现货,与SKF合作,咨询热线:022-58519723业务咨询
SKFN1013KPHA/SP它虽小,却是工业革命的基石 它的质量过硬,为机械设备的高效、安全运行提供了保障它的抗剪切性能,确保了它的结构稳定性 它的轻量化设计,减少了材料的使用 转动世界的精密之选,它的每一次转动,都是对精准度的极致追求 ,八零动力SKF圆柱滚子轴承品种全,价格优,质量有保证!

用户关注最多的SKF轴承型号

SKF1313ETN9 SKF212-ZNR SKF591/800M SKF61909-2RS1 SKFBTM100A/HCP4CDBA SKFCR100X140X12HMS5RG SKFCR80x100x13CRSA1R SKFFT1.FM SKFFY55TR SKFFYR3.11/16H-3 SKFPWM200220180 SKFQJ208N2MA* SKFS71910ACD/HCP4A SKFSDAF22638x6.13/16 SKFSNP152x9

N1013KPHA/SP圆柱滚子轴承近似的SKF轴承型号

SKFNU1013ML SKFN1013KTNHA/SP SKFN1013KTNHA/HC5SP SKFN1013KPHA/SP SKFNU1013ECP SKFN1013KPHA/HC5SP SKFNU1013 SKFNU1013ECP SKFN1013KTN/HC5SP SKFN1013KTN/SP SKFN1013KPHA/HC5SP SKFN1013KTNHA/HC5SP

用户关注最多的轴承狗热门型号

SKF  IR7x10x12 SKF  23296CACK/W33 SNR  7211AC/DB SKF  23040CCK/33+H3040 LYC  5309 MRC  71911C/DT TIMKEN  EE420750D/421450/Y4S-421450 SKF  CR265X290X16CRSH13R RHP  7019C/DT NTN  7908DF BARDEN  7013AC DKF  7222AC/DB NTN  24192BK30 INA  GE90-LO IKO  LRT152020

版权所有©2009-2015 轴承狗zcgou.com ICP备案:津ICP备14004550号-13