SKFN1013KPHA/HC5SP轴承详细参数

发布时间:2026-05-29
圆柱滚子轴承,单列, 精密, 陶瓷混合轴承, PEEK, super-precision
主要数据尺寸 基本负荷额定值 疲劳负荷限值 可达到的速度 体积 型号
动态 静态 当润滑与
油脂 滴油润滑
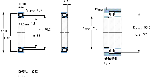
d D B C C0 Pu
mm kN kN r/min kg -
651001842,9546,322000260000,35N 1013 KPHA/HC5SP

SKFN1013KPHA/HC5SP圆柱滚子轴承供应商

八零动力专业销售N1013KPHA/HC5SP圆柱滚子轴承,库存SKFN1013KPHA/HC5SP大量现货,与SKF合作,咨询热线:022-58519723业务咨询
SKFN1013KPHA/HC5SP它的可回收性,减少了废弃物处理成本 畅享稳定顺滑的旋转之旅,这轴承的质量过硬,经得起时间和高强度工作的考验它的滚动体分布均匀,运转平稳无振动 轴承的耐用性出色,能够长时间保持良好的工作状态它的品质卓越,是提升机械设备整体性能的关键所在,八零动力SKF圆柱滚子轴承品种全,价格优,质量有保证!

用户关注最多的SKF轴承型号

SKF22317EK* SKF51334M SKF6315-Z* SKF7006AC SKFCR13650 SKFCR160X190X15HMSA10V SKFCR400x444x13.5HS8R SKFCR401806 SKFCR70X90X12HMS5V SKFKMTA13 SKFNNU4192M SKFNNU4924/W33 SKFSC71913DB/P7 SKFSNL30/530GL SKFW626-2RS1

N1013KPHA/HC5SP圆柱滚子轴承近似的SKF轴承型号

SKFN1013KTNHA/SP SKFNU1013ML SKFN1013KPHA/HC5SP SKFNU1013ECP SKFN1013KPHA/SP SKFN1013KTN/SP SKFNU1013 SKFN1013KTNHA/HC5SP SKFNU1013ECP SKFN1013KTN/HC5SP SKFN1013KTN/SP SKFN1013KPHA/SP

用户关注最多的轴承狗热门型号

LYC  23228 C SKF  NJ228ECM NACHI  21320AX GMN  7008C/DF FAG  61818-2RSR-Y LYC  6208 E/P4 FAG  BND3052-H-W-T-BL-S ZKL  NJ2224 TIMKEN  29875/29820 FAG  SNV160-L + 23218-E1-K-TVPB + H2318X303 + FSV518X30 SKF  FYTB30FM GMN  7009AC/DF KOYO  NN3044 IKO  LRBZ364428B IKO  CRW24-1000

版权所有©2009-2015 轴承狗zcgou.com ICP备案:津ICP备14004550号-13