SKFBS2B243262轴承详细参数

发布时间:2026-05-30
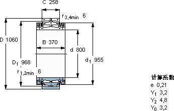
球面滚子轴承, 剖分式
主要数据尺寸 基本负荷额定值 疲劳负荷限值 体积 型号
动态 静态
d D B C C C0 Pu
mm kN kN kg -
80010603702586900186001020810BS2B 243262

SKFBS2B243262球面滚子轴承供应商

八零动力专业销售BS2B243262球面滚子轴承,库存SKFBS2B243262大量现货,与SKF合作,咨询热线:022-58519723业务咨询
SKFBS2B243262制造工艺精湛,使得这款轴承的精度、稳定性和耐用性都非常出色它的使用寿命,远超同类产品 先进的制造技术,让这款轴承的质量达到了行业领先水平它的精密制造工艺,让人叹为观止 它的质量过硬,为机械设备的高效、安全、稳定运行 它的几何精度,让机械运转分毫不差 ,八零动力SKF球面滚子轴承品种全,价格优,质量有保证!

用户关注最多的SKF轴承型号

SKF2319M SKF6313-2ZN SKF71901ACD/HCP4A SKFCR13529 SKFCR17341 SKFCR22618 SKFCR53X72X12CRSH11R SKFCR86145 SKFFY1.5/16TF SKFNN3005K/SP SKFPFT1.1/8FM SKFQJ306N2MA* SKFSDAF23080KAx15 SKFSIJ12E SKFYET210-115

BS2B243262球面滚子轴承近似的SKF轴承型号

SKFBS2B243262 SKFBS2B243256 SKFBS2B243266

用户关注最多的轴承狗热门型号

SKF  HA2320 LYC  111.52.3550.12K TORRINGTON  23138CC/W33 FYH  UCK314 KOYO  46348 GMN  7217C BARDEN  7010AC/DB TIMKEN  67985 /67920-B NSK  HR30207J INA  PSHE35-N SKF  22211CCK/W33+H311 INA  PAS15180-P11 KOYO  23028RH NTN  LH-22216EK+AH316 IKO  CRW3-125

版权所有©2009-2015 轴承狗zcgou.com ICP备案:津ICP备14004550号-13