SKFBC2-8010轴承详细参数

发布时间:2026-04-15
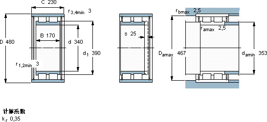
圆柱滚子轴承, 双列满装滚子, 无密封件, 没有载荷支承能力
主要数据尺寸 基本负荷额定值 疲劳负荷限值 额定速度 体积 型号
动态 静态 参照速度 限制速度
d D B C C0 Pu
mm kN kN r/min kg -
34048017028106000560500700105BC2-8010

SKFBC2-8010圆柱滚子轴承供应商

八零动力专业销售BC2-8010圆柱滚子轴承,库存SKFBC2-8010大量现货,与SKF合作,咨询热线:022-58519723业务咨询
SKFBC2-8010品质卓越制造工艺先进,使得这款轴承的性能远超普通产品它的精密测量技术,确保了每一件产品的品质 它的品质卓越,为机械设备的高效运行提供了坚实后盾先进的制造技术和严格的质量检测,造就了这款优质轴承高精度的制造工艺,造就了这款高品质的轴承,八零动力SKF圆柱滚子轴承品种全,价格优,质量有保证!

用户关注最多的SKF轴承型号

SKFBFDB353200/HA3 SKFBS2B247597 SKFBT4B328921G/HA1VA901 SKFBT4B334115G/HA1VA901 SKFCR19884 SKFCR300x332x16HDS2R SKFCR70X90X10HMSA10RG SKFNJ2210E+HJ2210E SKFNKX20 SKFNU2864ECMA SKFNUP222ECML* SKFPCM160165100B SKFSY1.1/4AWF SKFSYR2.11/16H-3 SKFW627/7-2Z

BC2-8010圆柱滚子轴承近似的SKF轴承型号

SKFBC2-8010 SKFBC4-8010/HA4 SKFBC2-8008/HB1 SKFBC2-8011/HB1

用户关注最多的轴承狗热门型号

FAG  SNV160-L + 20218-MB + DHV218 SKF  CR14247 LYC  22236 K SKF  MS30/900-850 SNR  6307N INA  KH20-PP SKF  SAF22634x5.7/8 国产  NF317ETN1 LYC  8787/1716K 国产  UCHA208 NTN  6336 INA  CRB25/70 国产  7216ACM IKO  CFE6VBR IKO  CRBS18013V

版权所有©2009-2015 轴承狗zcgou.com ICP备案:津ICP备14004550号-13