SKF321394A轴承详细参数

发布时间:2026-04-14
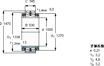
球面滚子轴承, 剖分式
主要数据尺寸 基本负荷额定值 疲劳负荷限值 体积 型号
动态 静态
d D B C C C0 Pu
mm kN kN kg -
10001470530345146003650021203000321394 A

SKF321394A球面滚子轴承供应商

八零动力专业销售321394A球面滚子轴承,库存SKF321394A大量现货,与SKF合作,咨询热线:022-58519723业务咨询
SKF321394A它的多样化应用,展现了它的无限可能 它的尺寸精度,达到了微米级的极致 先进的生产工艺,打造出了这款性能卓越的轴承轴承的耐用性强,减少了设备的停机维护时间它在冶金设备中的应用,确保了设备的高温性能 它的故障率极低,确保了设备的稳定运行 ,八零动力SKF球面滚子轴承品种全,价格优,质量有保证!

用户关注最多的SKF轴承型号

SKF240/950CAF/W33 SKF61996MA SKF7218BECBP* SKF7232AC/DF SKFBTM120B/P4CDBA SKFC2326K/VE240+AHX2326G* SKFCR13027 SKFCR50X85X10HMS5RG SKFCR60X80X8HMSA10RG SKFEE843220/843290 SKFNNCL4834CV SKFNNU4924B/SPW33 SKFNU256MA SKFT4CB100/Q SKFWS81214

321394A球面滚子轴承近似的SKF轴承型号

SKF321394A SKF3213 SKF3213A

用户关注最多的轴承狗热门型号

NACHI  52340 RIV  NU426 LYC  QJF 130/P6 SNR  1211K+H211 MRC  71909C/DB NTN  22318CC/W33 LYC  6038 E/P6 SKF  NCF1892V NSK  NUP213EW NACHI  7230BDF STEYR  N304 INA  PAF20165-P14 国产  NUP318E INA  PAP2025-P11 IKO  CRW6-450SL

版权所有©2009-2015 轴承狗zcgou.com ICP备案:津ICP备14004550号-13