INA MKLF52130-ZR直线执行器尺寸图纸
MKLF..-ZR系列两个滑块在相反方向运动的直线导引系统
|
| |
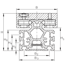
| | | L2 = 总行程 + 2 x L + 12 + Lmin L tot = 总行程 + 2 x L + 2 x L4 + 12 + Lmin 总行程 = 2×有效行程+ 2 x S (有效行程/滑块单位: mm)
注意:允差S指一个安全范围,至少应为85 mm。
最大支撑轨长度 L2 = 8000 mm。 | | 1) | | 根据DIN 3 405 的润滑嘴 |
|---|
| 5) | | 滑块之间的最小距离 Lmin 取决于应用工况,至少应为20 mm。 |
|---|
| 6) | | 支撑轨的下部在整个长度上是开放的 |
|---|
| B1 | 90 mm | 公差: +/-0,1 |
|---|
| B2 | 80 mm | |
|---|
| B3 | 112 mm | |
|---|
| B4 | 140 mm | |
|---|
| D | 115 mm | |
|---|
| D1 | 95 mm | 公差:G7 |
|---|
| D2 | 76 mm | |
|---|
| H1 | 60,5 mm | 公差: +/-0,5 |
|---|
| H2 | 117,7 mm | |
|---|
| H3 | 25 mm | |
|---|
| H4 | 50 mm | |
|---|
| H5 | 72,8 mm | |
|---|
| H6 | 65,4 mm | |
|---|
| L1 | 55 mm | 公差: +/-0,1 |
|---|
| L4 | 115,5 mm | |
|---|
| L5 | 19 mm | |
|---|
| L6 | 131 mm | |
|---|
| L7 | 120 mm | |
|---|
| O | M10 | |
|---|
| O1 | M8 | |
|---|
| T | 3,5 mm | 公差: +0,2 |
|---|
|
| |
| mtot | (Ltot - 231) x 0,0128 + 12,25 kg | 质量 |
|---|
| mLaw | 2 kg | 滑块的质量 |
|---|
| mLaw | 2,75 kg | 带防倾覆的滑块的质量 |
|---|
| Fy per | 1500 N | 滑块导轨系统的许用载荷
这些数值是单一载荷,应用在单个滑块上。当承受联合载荷时,这些值必须减小。 |
|---|
| F0y per | 2500 N | 滑块导轨系统的许用载荷
这些数值是单一载荷,应用在单个滑块上。当承受联合载荷时,这些值必须减小。 |
|---|
| Fz per | 3500 N | 滑块导轨系统的许用载荷
这些数值是单一载荷,应用在单个滑块上。当承受联合载荷时,这些值必须减小。 |
|---|
| F0z per | 3500 N | 滑块导轨系统的许用载荷
这些数值是单一载荷,应用在单个滑块上。当承受联合载荷时,这些值必须减小。 |
|---|
| Mx per | 33 Nm | 滑块导轨系统的许用扭矩
这些数值是单一载荷,应用在单个滑块上。当承受联合载荷时,这些值必须减小。 |
|---|
| M0x per | 52 Nm | 滑块导轨系统的许用扭矩
这些数值是单一载荷,应用在单个滑块上。当承受联合载荷时,这些值必须减小。 |
|---|
| My per | 105 Nm | 滑块导轨系统的许用扭矩
这些数值是单一载荷,应用在单个滑块上。当承受联合载荷时,这些值必须减小。 |
|---|
| M0y per | 105 Nm | 滑块导轨系统的许用扭矩
这些数值是单一载荷,应用在单个滑块上。当承受联合载荷时,这些值必须减小。 |
|---|
| Mz per | 47 Nm | 滑块导轨系统的许用扭矩
这些数值是单一载荷,应用在单个滑块上。当承受联合载荷时,这些值必须减小。 |
|---|
| M0z per | 78 Nm | 滑块导轨系统的许用扭矩
这些数值是单一载荷,应用在单个滑块上。当承受联合载荷时,这些值必须减小。 |
|---|
| ly | 381 cm^4 | 支撑轨的几何惯性力矩(在开放端) |
|---|
| lz | 272 cm^4 | 支撑轨的几何惯性力矩(在开放端) |
|---|
| | 32 AT 10 | 齿形带 | | | 1750 N | 齿形带的许用工作载荷 | | | 73,5 Nm | 最大驱动力矩 | | | 0,2 kg/m | 齿形带的质量 | | | 270 mm/Umdr | 进给量(mm/转) | | | 12,6 x 10^-4 kg x m^2 | 两个齿轮的质量惯性矩 |
|
八零动力专业销售德国INAMKLF52130-ZR直线执行器,库存德国INAMKLF52130-ZR直线执行器大量现货,与厂家常年批量订购MKLF52130-ZR轴承,咨询热线:022-58519723
INAMKLF52130-ZR,我选八零动力,品种全,价格优,质量有保证!大客户热线:022-58519722
其他品牌MKLF52130-ZR轴承同类可代替型号
MKLF52130-ZR它的高效率,让机械运转更加节能 这轴承的设计精妙,充分考虑了各种实际应用需求该轴承的性能卓越,完全满足了各种严苛工况的需求它的材质选择,体现了对耐用性的极致追求 它的润滑技术,减少了润滑剂的使用 这款轴承的精度极高,能够满足对精度要求苛刻的设备它在汽车工业中的应用,让车辆运行更加平稳 它的精密测量技术,确保了每一件产品的品质 MKLF52130-ZR
INAMKLF32086-ZR INAMKLF52145-ZR
INA MLF52130-ZR
INA MKLF52130-ZR
INA MLF52130-300-ZR
热门点击型号
FAG SNV080-L+2208-K-TVH-C3+H308X104+FSV508X104
FAG SNV100-L+22211-E1-K+H311X200+DHV511
FAG SD3136-H-TS-B-L+231SM160-MA
FAG SNV052-L+1205-K-TVH-C3+H205X012+TSV505X012
FAG SNV080-L+2307-TVH+DH307
INA SCE47-PP
FAG F517-A-L+2217-K-M-C3
FAG HCS71926-C-T-P4S
INA KTNO40-C-PP-AS
FAG NU2224-E-TVP2
LYC24130C/C4
FAGLOE540-N-BL-L
FAG2311-K-TVH-C3+H2311
SKFNA4832
INAPAPZ3232-P10
INACSCB050
SKFCR25X35X6HMSA10RG
LYCNJ209EM/P5
GMN7028C/DT
LYC29418
版权所有©2010-2017 轴承狗zcgou.com 上次更新:2026-05-30