INA AXK110145推力滚针和保持架组件尺寸图纸

AXK系列单向,根据 DIN 5405-2 标准的滚动轴承和滑动轴承,组件

目录

INA AXK110145轴承基本参数

INA推力滚针和保持架组件 AXK110145, 单向,根据 DIN 5405-2 标准
单向轴向载荷无密封脂润滑油润滑小型设计
 
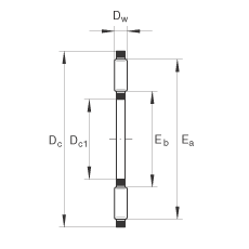
Dc1110 mm  
Dc145 mm  
Dw4 mm  
 
Ea143 mm  
Eb115 mm  
 
m122 g 质量
Ca97000 N 基本额定动载荷,轴向
C0a620000 N 基本额定静载荷,轴向
Cua63000 N 疲劳极限载荷
nG2230 1/min 极限转速
nB890 1/min 参考转速
 AS110145 推力轴承垫圈

INA AXK110145轴承供货商

八零动力专业销售德国INAAXK110145推力滚针和保持架组件,库存德国INAAXK110145推力滚针和保持架组件大量现货,与厂家常年批量订购AXK110145轴承,咨询热线:022-58519723业务咨询

INAAXK110145,我选八零动力,品种全,价格优,质量有保证!大客户热线:022-58519722

其他品牌AXK110145轴承同类可代替型号

AXK110145它的几何精度,让机械运转分毫不差 性能优越的轴承,极大地提高了设备的工作效率和稳定性坚固耐用它在矿山设备中的应用,确保了设备的高负载能力 它在冶金设备中的应用,确保了设备的高温性能 卓越的性能和可靠的质量,让这款轴承成为市场的宠儿优秀的设计让这款轴承在运行时更加高效节能为您的工程保驾护航,AXK110145

INA AXK110145轴承近似型号

INAAXK1024 INAAXK120155 INA AXK110145

热门点击型号

INA RWS1808-225/x225/x166 INA PWKR80-2RS INA RNA4828 FAG SNV085-L+1209-K-TVH-C3+H209X108+TSV509X108 FAG SNV180-L+21317-E1+DH317 FAG BND3068-H-W-Y-BF-S FAG F515-A-L+1215-K-TVH-C3 INA LFR5308-50-2Z INA LR5202-2RS INA RNAO22X30X13 国产F/12*17*15 NSKNA5911 TORRINGTON23268CAC/W33 TIMKENSDAF22222 TIMKEN32015X/32015X FAGBND3232-H-C-Y-AL-S STEYRNJ2304 BARDEN71916C/DF MACNUP2205 SKFNNU4052KM/W33

版权所有©2010-2017 轴承狗zcgou.com 上次更新:2026-04-14